Product No: LS-B74
The LS-B74 Temperature Rise Test Wall Apparatus – Wall Surface Luminaires adopts a standardized structural design adapted for testing wall-mounted lighting products, specifically designed for verifying the temperature rise performance of lighting equipment. This test wall integrates compliant junction boxes, wiring, and support components, accurately simulating the actual operating environment of lighting equipment installed on a wall. Equipped with movable brackets and casters, its placement can be flexibly adjusted, facilitating daily laboratory testing and equipment management. Standardized board materials, wood, and wiring configuration ensure the consistency and stability of the testing environment, providing a reliable testing platform for accurately obtaining temperature rise data of lighting equipment during actual operation.
Standards:
UL 1598:2024 Standard for Safety for Luminaires
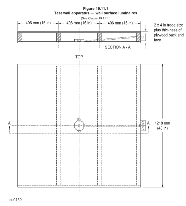
The UL1598 temperature rise test wall meets the following structural requirements:
(1) Front and back are 1218mm × 1218mm, 12mm thick plywood or veneer.
(2) The side timber is 2 inches (50.8mm) x 4 inches (101.6mm), thickness not visible.
(3) The end timber is 1 inch (25.4mm) x 4 inches (101.6mm), thickness visible.
(4) The internal support timber is 2 inches (50.8mm) x 4 inches (101.6mm), thickness not visible.
(5) Contains a standard 4-inch x 1-1/2-inch octagonal junction box (commonly known as an octagonal plate) with UL certification imported from the United States.
(6) The external junction box should be installed on the side.
(7) The internal conduit is 3/8″ metal conduit.
(8) Wiring includes one white and one black 14AWG wire and one 16AWG or thicker wire connected to the junction box for grounding.
(9) Unlike the temperature rise test ceiling, the test wall does not contain insulating fiberglass.
(10) The bottom of the test wall should be at least 0.9 meters above the ground and at least 0.3 meters above the ceiling. The 1×4 timber should be in a horizontal position.
Specifications:
| Item Name | Specificcations |
| Octagonal junction box | Fully meet standard UL 1598 Clause 19.10 |
| Ceiling branch wire temperature detector | Fully meet standard UL 1598Clause 19.9 and Figure 19.9.1 |
| External dimensions | L1220mm×W700mm×H2180mm |

UL 1598 and Figure 19.9.1